兵庫・大阪の任意売却ならエクセルホーム株式会社へ

  • 近畿エリア多数実績あり
  • 秘密厳守致します
  • 無理な営業は致しません

Property list
取扱い物件

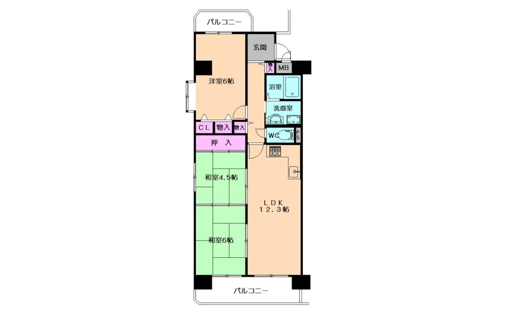
物件種類 任意売却物件
物件種目 中古マンション
マンション名 ファミール桑田町
価  格 ご成約済み
所 在 地 岡山市北区桑田町
交通状況 JR山陽本線 岡山駅 徒歩12分
専有面積 69.02㎡
バルコニー面積 11.86㎡
バルコニー方向 西・東向き
建物構造 鉄骨鉄筋コンクリート造陸屋根12階建10階部分
管理費等 22,680円(修繕積立金含む。)
建築年月 昭和61年2月築
間 取 り 3LDK
用途地域 商業地域 80% 400%
道路種類 公道幅員4m
現  況 空家
取引態様 媒介
引 渡 し 即可能
設備 電気、上下水道、都市ガス、給湯、エレベーター
物件特徴 三方角住戸! 10階につき眺望良好! 岡山駅徒歩12分! イオンモール徒歩5分!
備  考

アットホームにも掲載しています! ←クリックするとサイトへジャンプします。

資料請求・お問い合わせ
住宅ローン滞納無料相談窓口エクセルホーム株式会社
tell
ご相談が早ければ早いほど、スムーズに解決できます。出来るだけ早く私たちにご相談ください。
メール