兵庫・大阪の任意売却ならエクセルホーム株式会社へ

  • 近畿エリア多数実績あり
  • 秘密厳守致します
  • 無理な営業は致しません

Property list
取扱い物件

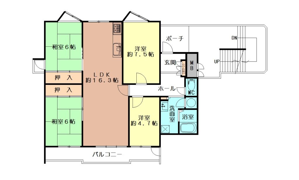
物件種類 通常売却物件
物件種目 中古マンション
マンション名 楠葉パークハイツ
価  格 ご成約済み
所 在 地 大阪府枚方市楠葉美咲3丁目
交通状況 京阪本線 樟葉駅 バス乗車6分 公園前バス停徒歩1分
専有面積 86.67㎡
バルコニー面積 10.93㎡
バルコニー方向 東南向き
建物構造 鉄筋コンクリート造ルーフィング葺5階建4階部分
管理費等 22,540円(修繕積立金込)
建築年月 昭和56年1月建築
間 取 り 4LDK
用途地域 第1種中高層住居専用地域 60% 200%
現  況 所有者居住中
取引態様 媒介
引 渡 し 相談
設備 電気、上下水道、シャワー、浴室換気乾燥機、洗面化粧台、ウォシュレット、TVモニターホン
備  考

★ペット飼育可! ★ゆとりの4LDK!

アットホームにも掲載しています! ←クリックするとサイトへジャンプします。

資料請求・お問い合わせ
住宅ローン滞納無料相談窓口エクセルホーム株式会社
tell
ご相談が早ければ早いほど、スムーズに解決できます。出来るだけ早く私たちにご相談ください。
メール